restructuration du site de l’Etat Major du
SDIS 73
site : Saint Alban Leysse (73)
maîtrise d’ouvrage : service départemental d’incendie et de secours de la Savoie
maîtrise d’oeuvre : actm, ide 2 projet, soraetec, axiome
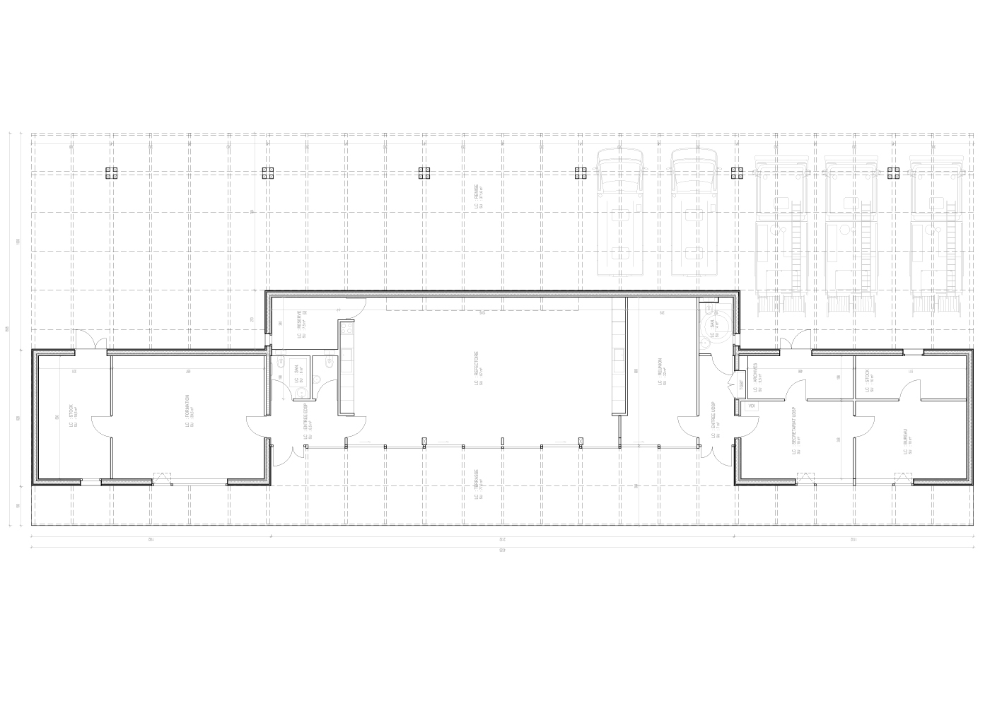
programme : réaménagement des espaces extérieurs, bureaux, salle de formation, réfectoire, cuisines, remises véhicules
surface : 306 m² de SdP + 8 400m² d’aménagments extérieurs
2 220 000 € ht
chantier en cours - livraison février 2026
SDIS 73
site : Saint Alban Leysse (73)
maîtrise d’ouvrage : service départemental d’incendie et de secours de la Savoie
maîtrise d’oeuvre : actm, ide 2 projet, soraetec, axiome
programme : réaménagement des espaces extérieurs, bureaux, salle de formation, réfectoire, cuisines, remises véhicules
surface : 306 m² de SdP + 8 400m² d’aménagments extérieurs
2 220 000 € ht
chantier en cours - livraison février 2026
RESTRUCTURATION DE L’ETAT MAJOR DU SDIS DE LA SAVOIE


