

















rénovation extension
faire peau neuve
site : Bourgneuf (73)
maîtrise d’ouvrage : communauté de communes Coeur de Savoie
maîtrise d’oeuvre : actm, cubic, secoba, abac
équipe : Adrien Cuny, Thomas Mouillon, Didier Humbert, Jean-Yves Chazeau, Guillaume Masson, Guillaume Visentin
programme : salle multisport, salle de boxe, dojo, vestiaires, cuisine
surface : 1 952 m²
2 250 000 € ht
livraison décembre 2022
faire peau neuve
site : Bourgneuf (73)
maîtrise d’ouvrage : communauté de communes Coeur de Savoie
maîtrise d’oeuvre : actm, cubic, secoba, abac
équipe : Adrien Cuny, Thomas Mouillon, Didier Humbert, Jean-Yves Chazeau, Guillaume Masson, Guillaume Visentin
programme : salle multisport, salle de boxe, dojo, vestiaires, cuisine
surface : 1 952 m²
2 250 000 € ht
livraison décembre 2022
SALLE
INTERCOMMUNALE DE BOURGNEUF
Lorsque nous avons visité le gymnase pour la première fois,
nous n’imaginions pas que la métamorphose serait si complète. Au fil des études
et de nos échanges, le programme s’est complexifié, apportant de l’épaisseur à
la réhabilitation.
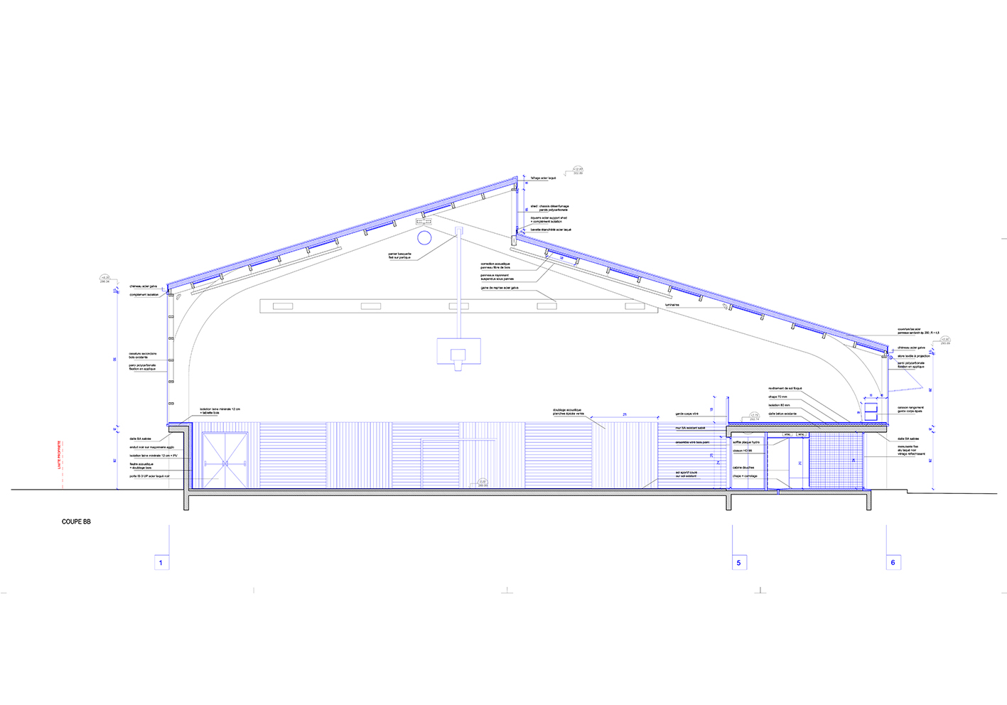
Nous avons commencé par ouvrir les espaces pour leur donner de l’ampleur. Les travaux de rénovation nous ont fait retrouver, derrière l’enduit et la peinture, la nature des matériaux d’origine : structure en béton, murs de remplissage en agglomérés, charpente bois.
Nous avons choisi de laisser apparaitre ces matériaux bruts. En réaction à l’existant, les nouveaux ouvrages - sols, cloisons, mobilier - ont pris une couleur. Ils se sont insérés en rondeur entre les éléments porteurs de la structure, petit clin d’œil au plan libre si cher au mouvement moderne.
L’extension est construite en béton, dans la même logique que l’existant. Elle prolonge le rythme des pilastres en pignon ouest. Placée à l’entrée du site, elle donne un nouveau visage au gymnase. Plus personne ne saurait dire à quoi ressemblait l’ancienne construction, même si elle est pourtant bien là en filigrane.
Nous avons commencé par ouvrir les espaces pour leur donner de l’ampleur. Les travaux de rénovation nous ont fait retrouver, derrière l’enduit et la peinture, la nature des matériaux d’origine : structure en béton, murs de remplissage en agglomérés, charpente bois.
Nous avons choisi de laisser apparaitre ces matériaux bruts. En réaction à l’existant, les nouveaux ouvrages - sols, cloisons, mobilier - ont pris une couleur. Ils se sont insérés en rondeur entre les éléments porteurs de la structure, petit clin d’œil au plan libre si cher au mouvement moderne.
L’extension est construite en béton, dans la même logique que l’existant. Elle prolonge le rythme des pilastres en pignon ouest. Placée à l’entrée du site, elle donne un nouveau visage au gymnase. Plus personne ne saurait dire à quoi ressemblait l’ancienne construction, même si elle est pourtant bien là en filigrane.