construction d’une caserne dédiée à la gestion des risques naturels
site : Levens (06)
maîtrise d’ouvrage : département des Alpes Maritimes
maîtrise d’oeuvre : combas, actm, i84, cet, canopée, axybat
équipe : Mathieu Grenier, Pierre Lequer, Thomas Mouillon, Adrien Cuny, Olivier Lesur, Vincent Ferrier, Arnaud Beaugeard
programme : remise véhicule, atelier mécanique, vestiaires, bureaux, réfectoire
surface : 650 m²
2 036 000 € ht
livraison décembre 2021
site : Levens (06)
maîtrise d’ouvrage : département des Alpes Maritimes
maîtrise d’oeuvre : combas, actm, i84, cet, canopée, axybat
équipe : Mathieu Grenier, Pierre Lequer, Thomas Mouillon, Adrien Cuny, Olivier Lesur, Vincent Ferrier, Arnaud Beaugeard
programme : remise véhicule, atelier mécanique, vestiaires, bureaux, réfectoire
surface : 650 m²
2 036 000 € ht
livraison décembre 2021
BASE FORCE 06
La
base force 06 de Levens
accueille un service du département des Alpes-Maritimes spécialisé dans la
prévention des risques naturels (feux de forêt, inondations). Le site du projet
est un fond de vallon au pied du village perché de Levens. C’est un lieu aride
et encaissé, entouré par le maquis.
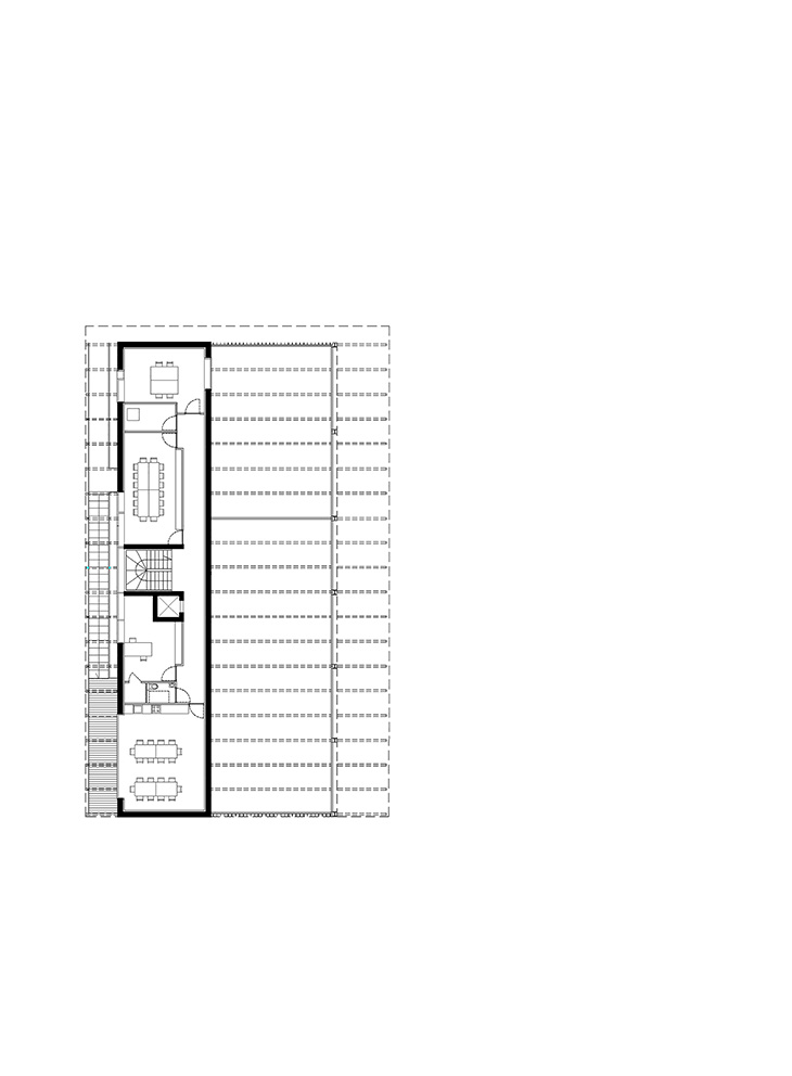
La caserne est aménagée de manière fonctionnelle. Le bâtiment est divisé en deux parties, la partie véhicules tournée vers la cour et la partie des hommes ouverte sur le paysage. Les locaux de vie sont abrités dans une construction chaleureuse aux murs épais. Les véhicules sont stationnés dans un volume en charpente métallique. Un grand toit couvre l’ensemble. Il apporte unité, ombre et fraicheur. Les activités sont réparties sur deux niveaux, en bas la partie technique, à l’étage les bureaux et les espaces de détente. Une grande passerelle extérieure est suspendue à la charpente. Elle relie la cour au réfectoire qu’elle prolonge sous les arbres.
Nous cherchions à construire un bâtiment technique qui soit chaleureux. Les maisons du vieux village sont réalisées en petite maçonnerie de pierres et en enduit. Le chemin qui monte au village est bordé de cabanes agricoles construites dans un mélange de béton pauvre et de pierre. Nous avons cherché à reproduire cette matière qui accroche la lumière. Nous avons ramassé des pierres sur place et réalisé des essais jusqu’à trouver la bonne technique. Les murs des locaux de vie sont construits de cette manière, dans un béton qui n’en est pas vraiment un.
La caserne est aménagée de manière fonctionnelle. Le bâtiment est divisé en deux parties, la partie véhicules tournée vers la cour et la partie des hommes ouverte sur le paysage. Les locaux de vie sont abrités dans une construction chaleureuse aux murs épais. Les véhicules sont stationnés dans un volume en charpente métallique. Un grand toit couvre l’ensemble. Il apporte unité, ombre et fraicheur. Les activités sont réparties sur deux niveaux, en bas la partie technique, à l’étage les bureaux et les espaces de détente. Une grande passerelle extérieure est suspendue à la charpente. Elle relie la cour au réfectoire qu’elle prolonge sous les arbres.
Nous cherchions à construire un bâtiment technique qui soit chaleureux. Les maisons du vieux village sont réalisées en petite maçonnerie de pierres et en enduit. Le chemin qui monte au village est bordé de cabanes agricoles construites dans un mélange de béton pauvre et de pierre. Nous avons cherché à reproduire cette matière qui accroche la lumière. Nous avons ramassé des pierres sur place et réalisé des essais jusqu’à trouver la bonne technique. Les murs des locaux de vie sont construits de cette manière, dans un béton qui n’en est pas vraiment un.


